您现在的位置是:主页 > 传统办公楼 > 浦东新区 > 浦东新区
上海海航大厦出租/租赁/租金信息
周周2023-05-23【个人博客】人已围观
简介陆家嘴-海航大厦-办公楼租赁 楼盘介绍 上海海航大厦位于陆家嘴CBD,浦东新区浦明路和浦电路的交汇处。该项目由上海新世界集团开发并由旗下的物业管理公司提供物业管理服务。大厦
陆家嘴-海航大厦-办公楼租赁
楼盘介绍
上海海航大厦位于陆家嘴CBD,浦东新区浦明路和浦电路的交汇处。该项目由上海新世界集团开发并由旗下的物业管理公司提供物业管理服务。大厦坐落在黄浦江边,邻近地铁2,4,6,9号线换乘站世纪大道站。大厦的标准层面积约为2117至2388平方米,每层楼的得房率约为70%。
《楼盘参数信息》
大楼名称:上海海航大厦;地址:浦明路898号
商圈:浦东陆家嘴
竣工时间:2014
楼层数:20层,总建筑面积87,943 平方米;层高2.88
物业管理费:¥36 /平方米/月
标准层建筑面积:2,388 平方米;得房率70
租赁价格:7元/㎡/天起
租赁面积:200平起租
物业管理公司:开发商下属物业管理公司
业主:上海大新华雅秀投资有限公司
客梯数量:6部;货梯数量3部
公共交通:公交
机场:45分钟车程至上海浦东国际机场
停车场:324个车位;停车费1,500 元/月
地铁线4号线塘桥站
周边设施(餐饮配套):九井自慢料理(陆家嘴旗舰店);正本料理小沪大厨(海航大厦店);航迹厨房FLINT 扒房
周边设施(商店):新塘桥生活广场;上海湾华润时代广场;1088广场;光年汇
周边设施(***酒店):上海鲁能JW万豪侯爵酒店;上海浦东喜来登由由大酒店;上海金陵紫金山大酒店;上海锦江汤臣洲际大酒店
周边设施(健身配套):BodyLab Dance Center(潍坊店);Wave Fit健身私教工作室(浦东南路店);世纪海景私家会所;匠人健身私教工作室;浦东福朋喜来登由由酒店-健身中心
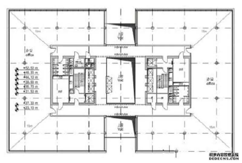
《平面图》

《地理位置》

《实拍项目图》











很赞哦! ()
上一篇:东亚银行金融大厦租赁信息发布
点击排行
上海中心大厦写字楼出租/租赁/租金猜你喜欢
站点信息
- 建站时间:2020-02-24
- 网站程序:WP7.5
- 主题模板:我也不知道啊
- 文章统计:1404 篇
- 源码统计:6 篇
- 微信公众号:扫码,关注我的娱乐圈

