您现在的位置是:主页 > 个人博客 > 个人博客
无限极大厦(原企业天地3号楼)招租
周周2022-06-07【个人博客】人已围观
简介无限极大厦(原企业天地3号楼)坐落于上海市黄浦区湖滨路168号,位处上海新天地发展项目之中心地段,是当地的地标项目。大厦南面是太平湖公园,大厦上面可直面看到翠湖天地雅苑
无限极大厦(原企业天地3号楼)坐落于上海市黄浦区湖滨路168号,位处上海新天地发展项目之中心地段,是当地的地标项目。大厦南面是太平湖公园,大厦上面可直面看到翠湖天地雅苑、翠湖天地御苑、翠湖天地嘉苑、华府天地、新天地商场等, 2015年12月李锦记、万科置业香港成立合资公司斥资57亿元从瑞安房地产有限公司购得上海企业天地3号楼。
无限极大厦基本信息:
租金报价:12.5元~15元/平/天
大楼地址:上海市黄浦区湖滨路168 号
建筑面积:约87295平方米
大楼层数:31层 (其中23层是可出租楼层)
办公面积:56517.65 平方米
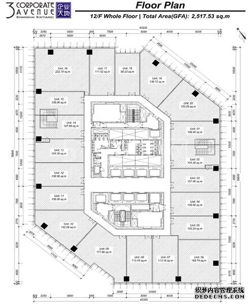
整层面积:2557平米
分割面积:217平~2557平
整层净高:2.85米
大堂层高:9米
架空地板:150mm
电梯配置:高低区各7部客梯、2部货梯
空调系统:VAV 变频系统
停 车 位:377 个(1660元/个/月)
物 业 费:39元
物业公司:万科物业
开 发 商:上海复乐房地产有限公司
入住企业:麦肯锡(中国)、保乐力加(中国)、君创国际融资租赁有限公司、普思投资等
周边大楼:领展企业广场、企业天地5号楼、新茂大厦、瑞安广场、香港广场、中环广场等
咨询热线:021-51250158
距1号线黄陂南路站步行5分钟
距8号线大世界站步行10分钟
距10号13号线新天地站步行8分钟
(点击地图可查看地理位置)
无限极大厦
位置:
上海市黄浦区湖滨路168号
无限极大厦整层平面图
无限极大厦实景照片:





很赞哦! ()
点击排行
本栏推荐
猜你喜欢
站点信息
- 建站时间:2020-02-24
- 网站程序:WP7.5
- 主题模板:我也不知道啊
- 文章统计:1290 篇
- 源码统计:6 篇
- 微信公众号:扫码,关注我的娱乐圈

